男女啪啪做爰高潮全过有多少姿势,国产熟妇BBWBBWBBW,理论片87福利理论电影,日日噜噜夜夜爽爽,国产乱子经典视频在线观看,99久久国产宗和精品1上映,巜人妻公妇の浮中字,无遮挡无掩盖的网站,chinese乱子伦xxxx,成年男性泄欲网站
首 頁
關于奇力
新聞中心
發展歷程
產品中心
人力資源
售后服務
銷售網絡
聯系我們
智能型張氏制動器
交直流兩用制動器
減速型張氏制動器
高效節能電磁鐵
地 址:石家莊市新華區東營工業區
聯系人:張經理 13931160824
聯系人:雷經理
13932186630
網 址:
http://www.husong.net.cn
E-mail:
qilikj@126.com
Ⅲ型
時間:2013/10/17 8:57:04 瀏覽:4548次
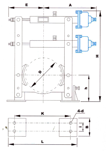
Ⅲ型 技術數據及結構尺寸
交直流自動器:萬一停電,可直接用直流電打開制動器,安全的把吊物放下.
Ⅲ型 制動器可按用戶需要定做(全部系列起動電流8-14A 工作電流0.6-1.0A)
制動器型號
制動輪直徑(mm)
額定制動力矩(Nm)
配用電磁鐵
結構尺寸
型號
額定推力(N)
h
k
i
d
≤H
≤E
A
L
B
Z
3
MW300-500-Ⅲ
300
500
上Z
3
MW300G-2300
2300
240
500
80
22
510
320
430
620
170
下Z
3
MW300JZ-2300
2300
540
Z
3
MW400-1000-Ⅲ
400
1000
上Z
3
MW500G-3500
3500
320
650
130
22
900
400
550
700
180
下Z
3
MW400JZ-3500
3500
項目
制動器型號
制動輪直徑D(mm)
額定制動力矩(N.m)
配用電磁鐵
結構尺寸
型號
額定推力(N)
h
k
i
d
≤H
≤E
A
L
B
Z
3
MW200F-420-Ⅲ
200
420
上Z
3
M200F-1300
1300
170
350
380
60
17
460
250
330
460
130
下Z
3
M200-800
800
Z
3
MW200F-500-Ⅲ
200
500
上Z
3
M200G-1300
1300
170
350 380
60
17
460
250
330
460
130
下Z
3
M200G-1300
1300
Z
3
MW300F-1060-Ⅲ
300
1060
上Z
3
M300F-2300
2300
240
500
540
80
22
710
320
430
620
170
下Z
3
M300-1800
1800
Z
3
MW300G-1100-Ⅲ
300
1100
上Z
3
M300G-2300
2300
240
500 540
80
22
710
320
430
620
170
下Z
3
M300G-2300
2300
Z
3
MW400-1600-Ⅲ
400
1600
上Z
3
M400G-2500
2500
320
650
130
22
900
400
550
700
180
下Z
3
M400G-2500
2500
Z
3
MW500-2800-Ⅲ
500
2800
上Z
3
M500-3500
3500
400
760
150
22
1030
420
750
810
200
下Z
3
M500-3500
3500
關于奇力
公司介紹
企業文化
公司榮譽
主營業務
新聞中心
公司動態
業界觀察
產品中心
產品展示
產品應用
發展歷程
人力資源
人才戰略
招聘職位
客服中心
聯系我們
在線咨詢
銷售網絡
Copyright ©
石家莊市奇力科技有限公司
All Rights Reserved.
技術支持:
河北供求網
河北名企網榮譽企業-
河北企業名錄
已收錄
冀ICP備18000449號-1
免責聲明:本站部分圖片來源網絡,版權歸原創作者或原公司所有,如果您認為我們侵犯了您的版權,請告知,我們立即刪除!